| ||
|---|---|---|
| (点击题目可以在互联网中搜索该题目的相关内容) 日期:2007-1-16 0:01:01 来源: 作者: 点击: | ||
|
1 引言
液压AGC(自动厚度控制)系统是提高宽带热连轧板厚精度,控制板形,提高带材合格率的重要技术,AGC系统的动态品质、静态品质的好坏直接影响系统的稳定性,响应的快速性和控制精度。板带轧机液压AGC系统主要功能是实现压下位置自动控制(液压APC)及板厚自动控制(液压AGC)。正是由于液压AGC系统响应的快速性,控制的精确性,使得越来越多的宽带生产线采用。
莱钢
2 液压AGC系统的组成
2.1 工艺原理
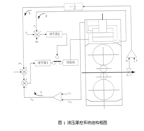
液压压下装置一般由位移传感器,液压缸和电液伺服阀等所组成,如图1所示。系统通过电液伺服阀对液压缸的流量和压力的调节来控制液压缸上、下移动的行程来调节轧辊辊缝值。
液压AGC系统通过测厚仪、位移传感器和压力传感器等对相应参数的连续测量,连续调整压下缸位移、轧制压力等,从而控制板带材的厚差。一个完整的液压伺服控制厚度自动控制系统的主要设备由计算机、检测元件为主的控制装置和以一套液压缸(每侧一个)为主的执行机构组成。检测元件主要有:测厚仪、测压仪(每侧一个)以及安装在液压缸上的四个位置传感器(每个液压缸两个)和两个压力传感器(每个液压缸一个)。
2.2液压AGC阀台
|
||
| 上一篇: 某钢铁有限责任公司转炉工程 下一篇: 真空吹氧脱碳自动化控制系统设计 |

